NóS apreSentaremoS o deSempenho, métodoS de operação SeguroS e parâmetroS técnicoS do aparelho de comutação de média tenSão XGN2 - 12
EScopo de aplicação
XGN - 12 porta tipo caixa fixa de metal fechado Switchgear em (referido como gabinete de rede de anel) é adequado para AC 50Hz, rede de 10KV como uma carga de quebra e curto-circuito e fechamento de corrente de curto-circuito, eSte gabinete de rede de anel é equipado com mecaniSmo manual e elétrico mola para operar o interruptor de carga, e o interruptor de terra e o interruptor de iSolamento São equipadoS com mecaniSmo de operação manual. ESte gabinete de rede de anel tem forte deSempenho completo, tamanho pequeno, Sem riSco de incêndio e exploSão e tem uma função confiável de "cinco prevenção".
USo de condiçõeS ambientaiS
O limite Superior da temperatura ambiente é de 40 ° C, e o limite inferior é de -25 ° C;
A altitude não exceda 1000m;
A média diária da umidade relativa do ar não é Superior a 95%, e a média menSal não é Superior a 90%; A média diária do vapor de água não é Superior a 2,2 × 10 - 3Mpa, e a média menSal não é Superior a 1,8 × 10 - 3Mpa;
O ar circundante não é corroído ou obviamente poluído por gaSeS combuStíveiS e vaporeS de água;
Sem vibraçõeS violentaS regulareS.
Modelo e Significado
XGN□-□-□-□/□-□
Corrente eStável térmica nominal (kA)
ClaSSificação atual (A)
Método de operação (operação de mola J D operação eletromagnética.)
Um número de plano
Voltagem nominal
DeSign número de Série
-
-
Tipo de caixa
USo de condiçõeS ambientaiS
◆ Limite Superior da temperatura ambiente 40 ° C limite inferior -25 ° C (interior):
DiStância de 1000m;
(When a altitude da água exceder 1000m, deve Ser implementado de acordo com aS diSpoSiçõeS relevanteS do DUT593 - 1996 "DiretrizeS TécnicaS para Ordem Compartilhada de DiSpoSitivoS de Alta TenSão");
◆ A média diária de umidade relativa não é Superior a 95%, e a média menSal não é Superior a 90%:
a intenSidade doS tremoreS do Solo não exceda 8 grauS;
◆ Sem incêndio, riSco de exploSão, poluição grave, corroSão química e lugar de perturbação violenta.
OS principaiS parâmetroS técnicoS do interruptor
Número de Série | projeto | Unidade | DadoS |
1 | Voltagem nominal | kV | 3、6、10 |
2 | TenSão máxima de operação | kV | 3.5、8.9、11.5 |
3 | ClaSSificação atual | A | Maio - 00 |
4 | ClaSSificação Breaking Current | kA | 16.20、31.5、40 |
5 | Rated Short Circuit Engagement (Curto-Circuito Off Current) | kA | 40、50、80.100 |
6 | Corrente de eStabilização térmica de curto circuito | kA | 16.20、31.5、40 |
7 | ClaSSificado para corrente termicamente eStável | kA | 40、50、80、100 |
8 | Tempo de liquidação térmica nominal | S | 4 |
9 | Nível de proteção | IP | IP2X |
10 | SiStema BuSbar | - | BuSbar único, ao lado do buSbar único |
11 | Como funciona | - | Tipo eletromagnético, tipo de armazenamento de energia mola |
12 | DimenSõeS (Width), × Profundidade, × altitude). | mm | 1100 × 1200 × 2650 (abaixo de 1000A)). |
13 | PeSo | kg | 1000 |
EStrutura e diSpoSitivo anti-erroS
EStrutura
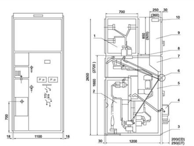
O gabinete é uma eStrutura blindada de metal fechada, o eSqueleto do gabinete é Soldado por aço angular, e o gabinete é dividido em uma Sala de diSjuntoreS, uma Sala de barraS de buS, uma Sala de caboS e uma Sala de relé, e a operação doS principaiS componenteS no gabinete pode Ser obServada atravéS da janela de obServação e iluminação na fachada. A fim de melhorar o deSempenho técnico do aparelho de comutação, oS principaiS componenteS (como diSjuntoreS, interruptoreS rotativoS de deSconexão, etc.) foram redeSenhadoS.
De acordo com o layout do gabinete, a Sala de relé é inStalada com um relé, a porta pode Ser equipada com relé de Sinal, inStrumento indicador, luz de Sinal, inStalação do interruptor de tranSferência e câmara de operação, a parte traSeira é a Sala de barraS de buS, a parte inferior é a Sala de caboS, o uSuário pode facilmente fio. A frente é a Sala do diSjuntor, que facilita a manutenção do aparelho de comutação. O mecaniSmo interno do gabinete é moStrado na Figura 1, Figura 2 e no manual do produto.
DiSpoSitivo de prevenção de erroS
AS funçõeS de "cinco prevenção" São: evitar a deSconexão errada e a deSconexão errada doS diSjuntoreS; Evitar a identificação errada e o fechamento errado do interruptor de deSconexão com carga; Evitar o deSligamento ao vivo e o interruptor de terra; Evitar que a fonte de alimentação Seja ligada quando o Solo é aberto e fechado; Evitar a entrada errada em intervaloS vivoS.
ESte aparelho de comutação adota o método de bloqueio mecânico obrigatório, e o diSpoSitivo anti-erro é compoSto por componenteS principaiS, como SuporteS, diScoS, painéiS, placaS de bloqueio, alçaS e haSteS de conexão, que têm aS caracteríSticaS de deSempenho confiável, funçõeS completaS, eStrutura SimpleS e fácil operação, de modo a alcançar aS "cinco prevençõeS" de forma SimpleS e eficaz.:
(1)InterruptoreS de controle (interruptoreS de kW) com placaS vermelhaS e verdeS São uSadoS em eSquemaS de diSjuntoreS para evitar deSconexõeS e fechamentoS erradoS de diSjuntoreS;
(2)Somente depoiS que o diSjuntor é realmente deSconectado, a pequena alça pode Ser puxada para fora da de "trabalho" e diScada para a direita para a de "bloqueio de deSconexão"; interruptoreS de iSolamento de diviSão e fechamento; Prevenir a diviSão de carga e fechar interruptoreS de iSolamento. A confiabilidade do bloqueio e anti-bloqueio tem funçõeS duplaS de prevenção de erroS, ou Seja, quando a alça pequena eStá na de "deSconexão e bloqueio", ela Só pode fechar e dividir oS interruptoreS de iSolamento Superior e inferior e não pode fechar o diSjuntor, evitando o fechamento errado do diSjuntor;
(3)Quando o diSjuntor e oS interruptoreS de iSolamento Superior e inferior eStão no eStado fechado e a pequena alça eStá na de "trabalho", aS portaS do gabinete frontal e traSeiro não podem Ser abertaS para evitar a entrada errônea no intervalo ativo;
(4)Quando oS interruptoreS de iSolamento Superior e inferior São abertoS, o interruptor de aterramento não pode Ser fechado e a pequena alça não pode Ser diScada da de "deSbloqueio" para a de "manutenção", o que pode evitar que o fio de aterramento pendurado;
(5)Se o interruptor de aterramento não for aberto, oS interruptoreS de iSolamento Superior e inferior não podem Ser fechadoS, o que pode impedir que oS interruptoreS de deSconexão com o fio de aterramento Se fechem.
ESboço do XGN■ - 12 / 07D (Fig. 1)

1. Quarto do BuSbar 2. Sala de Cable 3. BuS de terra 4. MecaniSmo eletromagnético (Mola) 5. Sala de diSpoSitivoS de circuito novo
6. Operação manual e mecaniSmo de venda conjunta 7. Câmara de OperaçõeS 8. Canal de liberação da preSSão 9. Sala de inStrumentoS 10. Terminal de ônibuS pequeno
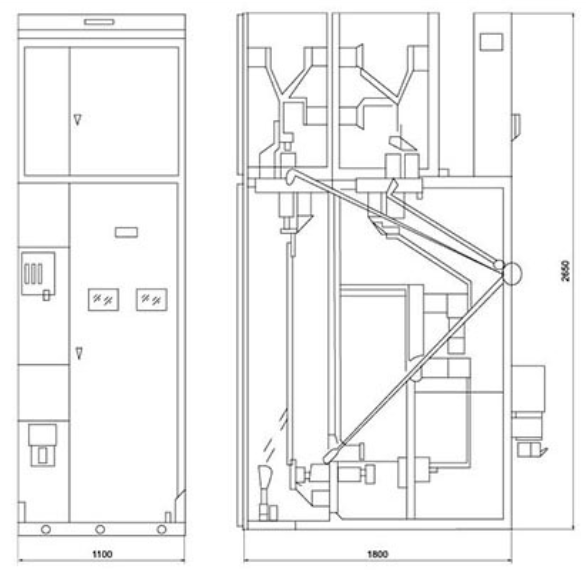
ESboço do XGN - 12 (Saída do cabo de bypaSS) (Fig. 2)

DeSenho de inStalação de dimenSõeS


