Nós apresentaremos o desempenho, métodos de operação seguros e parâmetros técnicos do aparelho de comutação de média tensão KYN61-40.5
Modelo e significado
K Y N 61 - 40.5 / □ - □
Corrente de curto-circuito de quebra (kA)
Classificação atual (A)
Voltagem nominal (kV)
- - - - -
- - - - - -
Tipo de remoção
- - - - - - -
Uso de condições ambientais
O limite superior da temperatura ambiente é de 40 ° C, e o valor médio medido dentro de 24 horas não excede 35 ° C.
Limite inferior -15 °C:
Altitude: não superior a 1000 metros acima do nível do mar;
Umidade relativa: média diária não superior a 95%, média mensal não superior a 90%;
Intensidade do terremoto: não mais de 8 graus;
Pressão de vapor de água: a média diária não excede 2,2 kPa e a média mensal não excede 90%.
Parâmetros técnicos
Principais parâmetros técnicos do aparelho de comutação de vácuo
Número de série | projeto | Dimensões | parâmetro |
1 | Voltagem nominal | kV | 40.5 |
2 | LiãoChang | A | 12501600 2000 |
3 | Frequência Rated | em Hz | 50 |
4 | Classificado para resistir a corrente a curto prazo | kA | 20 25 31.5 |
5 | Peak Resist Current (em inglês) | kA | 50 63 80 |
6 | Frequência de potência nominal resistir a tensão | kV | 95 / 1 min |
7 | Relâmpago de choque nominal resistir a tensão | kV | 185 |
8 | Duração de curto-circuito | S | 4 |
9 | Nível de proteção | IP3X |
Principais parâmetros técnicos do disjuntor de vácuo
Número de série | projeto | Posição weaving | parâmetro |
1 | Voltagem nominal | kV | 40.5 |
2 | Frequência Rated | em Hz | 50 |
3 | Frequência de potência nominal resistir a tensão | kV | 95 / lmin |
4 | Relâmpago de choque nominal resistir a tensão | kV | 185 |
5 | Classificação atual | A | 12501600 2000 |
6 | Classificado para resistir a corrente a curto prazo | kA | 20 25 31.5 |
7 | Corrente de quebra de curto-circuit | KA | 20 25 31.5 |
8 | Peak Resist Current (em inglês) | kA | 50 63 80 |
9 | Duração de curto-circuito | MS | 4 |
10 | Tempo de abertura | MS | 30 S 1 w 60 |
11 | Tempo de Hehe | MS | 50 & t w] 00 |
12 | 88 O número de vezes que a corrente é interrompida em um curto-circuito fixo | Times | 20 |
13 | Vida mecânica | Times | 10000 |
Os principais parâmetros técnicos da máquina de operação de mola
Nome | Unidade | Valor Numérico | |
Tensão de operação nominal | Split Coil (em inglês) | V | DC220 / 110 AC220 / 110 AC220 / 110 |
Fechamento Coils | |||
Classificação atual operacional | Split Coil (em inglês) | A | O.96 (22OV) 1.O5I11OV) |
Fechamento Coils | |||
ArmazeNomento de energia Potência do motor | w | 230 | |
Tensão nominal do motor de armazeNomento de energia | V | DC220 / 110 AC220 / 110 AC220 / 110 | |
Tempo de armazeNomento de energia | S | w 12 |
Características estruturais do Switchgear em
O aparelho de comutação é projetado de acordo com os padrões GB3906 - 1991 e IEC298 para aparelhos de comutação de metal blindado. O todo é composto por duas partes: o gabinete e a parte extraível (carrinho). A estrutura do gabinete é pré - fabricada e parafusada entre si. A parte interna do aparelho de comutação é dividida em uma sala de disjuntores, uma sala de barras de bus principais, uma sala de cabos e uma sala de instrumentos de relé com uma partição de metal. O nível de proteção do gabinete atinge IP3X, o nível de proteção entre cada compartimento é IP2X, e todas as peças estruturais metálicas são conectadas ao solo de forma confiável, e cada compartimento do sistema de circuito principal tem um canal de liberação de pressão de escape independente.
1. Enclosure e Partição
A concha e a partição do aparelho de comutação são parafusadas juntas com placas de aço laminadas a frio após serem processadas e dobradas por máquinas-ferramentas CNC. Portanto, o equipamento de comutação montado pode garantir a uniformidade das dimensões estruturais. O aparelho de comutação é dividido em uma sala de disjuntores, uma sala de barramento principal, uma sala de cabos e uma sala de instrumentos de relé, e cada parte é separada por uma partição de metal aterrada.
2. Handcart
Os carrinhos podem ser divididos em carrinhos de disjuntor, carrinhos de transformador de tensão, carrinhos de medição, carrinhos de isolamento, etc. de acordo com o propósito
O carrinho de mão tem uma de teste / isolamento e uma de trabalho no gabinete, e cada é equipada com um dispositivo de prata conjunta para garantir que o carrinho de mão não possa ser movido casualmente quando está nas duas posições acima.
3. Compartimento Circuit Breaker
As faixas específicas são instaladas dentro do compartimento do disjuntor para que o carrinho de mão possa se mover. Quando o disjuntor se move entre as posições de trabalho da de teste, o retalho de isolamento é automaticamente aberto ou fechado, o que garante que o pessoal não
Toque no corpo carregado. O carrinho de mão pode ser operado com a porta do gabinete fechada, e o carrinho de mão pode ser visto no gabinete através da janela de visualização, bem como quaisquer sinais de função no carrinho.
4. Câmara Busbar
O ônibus principal leva de um aparelho de comutação para outro por meio de uma barra de ônibus de ramificação e uma caixa de contato estática, que é fixada com uma manga de barra de ônibus ao atravessar os painéis laterais do gabinete adjacente. Todas as barras de barramento são isoladas por isolamento composto.
5. Compartimento de cabo
PT, interruptor de terra, parador de sobretensão e múltiplos cabos podem ser instalados na sala de cabos.
6. Sala de Relay
A placa e o painel da câmara de relé podem ser instalados com componentes secundários, como controle, elementos de proteção, medição, instrumentação de exibição, indicador de monitorização ao vivo, etc.
7. Dispositivo Interlock
O aparelho de comutação possui um dispositivo de interbloqueio confiável para garantir a segurança dos operadores e equipamentos:
![]() | ![]() | ![]() |
| Promover a instalação de interlocação | KYN61-40.5 (Z) Gabinete de carrinho blindado | Switch de terra |
Quando o interruptor de aterramento está na aberta, o carrinho pode ser movido da de teste / isolamento para a de trabalho: e a porta traseira não pode ser aberta, o que evita a entrada errada no intervalo ativo.
Quando o carrinho de mão é completamente puxado para fora do gabinete ou quando o carrinho de mão é aterrado na de teste / isolamento no gabinete para abrir a fechadura e o desbloqueador, o interruptor de aterramento pode ser fechado; Quando o carrinho de mão está na de trabalho, o interruptor de aterramento não pode ser fechado. Ele impede a desconexão ao vivo do interruptor de aterramento e impede que o carrinho multi-mão se mova para a de trabalho quando o interruptor de aterramento está na fechada.
O carrinho de mão do disjuntor de circuito só pode operar o disjuntor quando está na de teste / isolamento ou na de trabalho: e depois que o disjuntor de circuito é nomeado, o carrinho de mão não pode se mover, o que impede que a carga ativa empurre e puxe acidentalmente o disjuntor. Os interlocamentos elétricos podem ser instalados entre cada armário.
Dispositivo de aterramento
Na sala de cabos, há uma barra de aterramento separada de 6x50mm2, que pode passar pelos armários adjacentes e ter bom contato com os armários.
Esquema de fiação principal
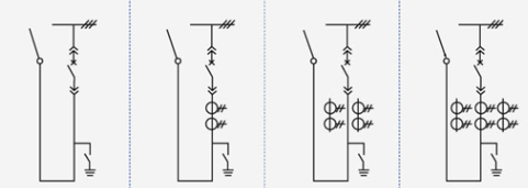
Existem 27 esquemas típicos comumente usados para o esquema de fiação primária do aparelho de comutação, que podem atender às necessidades dos usuários para linhas de entrada e saída de cabo, linhas de entrada e saída de sobrecarga, contato e medição, proteção, etc.
Número do esquema | 01 | 02 | 03 | 04 | |
Diagrama de fiação principal | ![]() | ||||
Principais equipamentos elétricos | Classificação atual | 125,016,002,000 | |||
Novo driver de circuito ZN85-40.5 | 1 | 1 | 1 | 1 | |
Transformador de corrente LDBJ8 (9) - 35 | 2 | ||||
Interruptor de aterramento IN22-40.5 / 31.5 | 1 | 1 | 1 | 1 | |
Uso | Overhead Out (em inglês) | Overhead Out (em inglês) | Overhead Out (em inglês) | Overhead Out (em inglês) | |
Número do esquema | 05 | 06 | 07 | 08 | |
Diagrama de fiação principal | ![]() | ||||
Principais equipamentos elétricos | Classificação atual | 125,016,002,000 | |||
Novo driver de circuito ZN85-40.5 | 1 | 1 | 1 | 1 | |
Transformador de corrente LDBJ8 (9) - 35 | 2 | 3 | |||
Interruptor de aterramento IN22-40.5 / 31.5 | 1 | 1 | 1 | 1 | |
Uso | Cabo Outlet | Cabo Outlet | Cabo Outlet | Cabo Outlet | |
Número do esquema | 09 | 10 | 11 | 12 | |
Diagrama de fiação principal | ![]() | ||||
Principais equipamentos elétricos | Classificação atual | 125,016,002,000 | |||
Novo driver de circuito ZN85-40.5 | 1 | 1 | 1 | 1 | |
Transformador de corrente LDBJ8 (9) - 35 | 1 | 2 | 3 | ||
Uso | Esquerda (direita) Contato | Esquerda (direita) Contato | Esquerda (direita) Contato | Esquerda (direita) Contato | |
Número do esquema | 13 | 14 | 15 | 16 | |
Diagrama de fiação principal | ![]() | ||||
Principais equipamentos elétricos | Classificação atual | 125,016,002,000 | |||
Novo driver de circuito ZN85-40.5 | |||||
Transformador de corrente LDBJ8 (9) - 35 | 1 | 2 | 3 | ||
Uso | Contato | Contato | Contato | Contato | |
Número do esquema | 17 | 18 | 19 | 20 | |
Diagrama de fiação principal | ![]() | ||||
Principais equipamentos elétricos | Classificação atual | 125,016,002,000 | |||
Novo driver de circuito ZN85-40.5 | 1 | 1 | 1 | 1 | |
Transformador de corrente LDBJ8 (9) - 35 | 1 | 2 | 3 | ||
Uso | Cabo em | Cabo em | Cabo em | Cabo em | |
Número do esquema | 21 | 22 | 23 | 24 | |
Diagrama de fiação principal | ![]() | ||||
Principais equipamentos elétricos | Classificação atual | 125,016,002,000 | |||
Novo driver de circuito ZN85-40.5 | 1 | 1 | 1 | 1 | |
Transformador de corrente LDBJ8 (9) - 35 | 1 | 2 | 3 | ||
Uso | Overhead em | Overhead em | Overhead em | Overhead em | |
Número do esquema | 25 | 26 | 27 | 28 | |
Diagrama de fiação principal | ![]() | ||||
Principais equipamentos elétricos | Classificação atual | 125,016,002,000 | |||
Transformador de tensão LDX9 - 35 | |||||
Fusível XPNP - 35 | 2 | 3 | 2 | ||
Arrestador de surtos YH5wS - 51 / 134Q | 3 | ||||
| Transformador SCB9 - 50 - 35 / 0.4 | 1 | ||||
Uso | Transformador de tensão | Transformador de tensão | Uso da estação mudou | ||
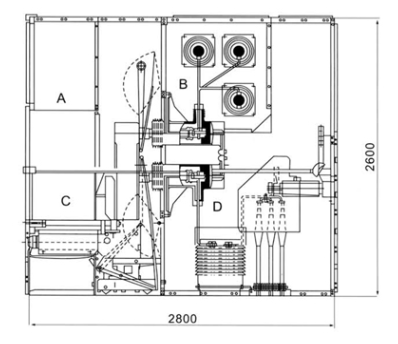
Dimensões e diagrama esquemático da estrutura do aparelho de comutação
![]() | ![]() |
| Dimensões (wxDxH): 1400x2800x2600 | Diagrama esquemático da estrutura do equipamento de comutação A sala de instrumentos de relé B sala de ônibus C sala de disjuntores D cabo |
Instalação do gabinete Switch
1. Altura da sala elétrica: ≥ 4500 mm:
2. Distância da parte de trás do gabinete para a parede: ≥ 1500mm;
3. Planaridade da estrutura da fundação: ≤ 1mm / m?;
4. A parte da fundação embutida no aço do canal acima do solo não deve exceder 3 mm;
5. Ele pode ser fixado na fundação por parafusos ou soldagem:
6. O peso do Switchgear em é de cerca de 1800Kg:
7. Largura do corredor de operação do aparelho de comutação (fiera única): ≥ 3000mm, linha dupla (face-to - face) ≥ 4000mm.
Consistência do produto
O número do esquema principal da linha secundária, o diagrama do sistema de ônibus único, o diagrama de arranjo e o diagrama de layout;
Diagrama esquemático do circuito elétrico secundário e diagrama de arranjo terminal:
O modelo, a especificação e a quantidade dos componentes elétricos do aparelho de comutação;
Especificações e materiais de barras de bus principais e barras de bus de ramo:
Nome e quantidade de peças sobressalentes e peças sobressalentes:
Requisitos especiais são acordados com o fabricante.
Devido à melhoria contínua da tecnologia do produto, todos os dados devem ser confirmados pelo departamento técnico mais recente da fábrica e haverá alterações sem aviso prévio.
Instruções de encomenda
O usuário deve fornecer as seguintes informações técnicas ao encomendar::
Diagrama do esquema de fiação principal, diagrama de propósito e sistema de fio único: tensão nominal: corrente nominal: corrente de quebra de curto-circuito nominal: diagrama de layout da sala de distribuição e arranjo e diagrama de configuração de equipamentos de comutação, etc.
Indique as especificações dos cabos de entrada e saída.
Requisitos para as funções de controle, medição e proteção de aparelhos de comutação e outros requisitos para dispositivos de travamento e automáticos.
O modelo, especificação e quantidade dos principais componentes elétricos no aparelho de comutação. Como um trocador entre os ou o gabinete de entrada precisa ser conectado por uma ponte de barras de bus, e requisitos específicos, como a capacidade nominal da ponte de barras de bus e a extensão da ponte de barras de bus a partir da altura do solo, devem ser fornecidos.
Quando o aparelho de comutação é usado em ambientes especiais, deve ser detalhado no momento do pedido.
outros requisitos especiais.
Diagrama esquemático da instalação de Switchgear em

