Nós apresentaremos o desempenho, métodos de operação seguros e parâmetros técnicos do aparelho de comutação de média tensão HXGN é - 12
1. Scope de uso

HXGN é□-12 (F.R.) caixa fixa AC metal fechado Switchgear em (referido como "cabinete de rede de anel") é um novo tipo de Switchgear em projetado para a renovação e construção de redes elétricas urbanas. Ele também é usado como corrente de carga de quebra, corrente de curto-circuito e corrente de placa de fechamento no sistema de alimentação, e é adequado para sistema de distribuição de energia AC 3 - 10KV, 50Hz.É amplamente utilizado em projetos de construção e renovação de redes elétricas urbanas, empresas industriais e de mineração, edifícios altos e instalações públicas, etc. Como uma unidade de fornecimento de energia de rede de anel e equipamento terminal, desempenhando o papel de distribuição de energia, controle e proteção de equipamentos elétricos, e também pode ser instalado em subestações pré - instaladas. Este gabinete de rede de anel está equipado com um interruptor de carga a vácuo e um mecanismo de operação de mola, que pode ser operado manualmente ou eletricamente. O interruptor de aterramento e o interruptor de isolamento são equipados com mecanismos de operação manual, e o conjunto completo deste gabinete de rede de anel é forte e pequeno. Não há risco de combustão e explosão e tem uma função confiável de "cinco prevenção". Este gabinete de rede de anel cumpre as disposições relevantes do GB3960 "3 ~ 35KV AC Metal Switchgear" e do padrão IEC60420 "High Voltage AC Load Switch-FUso Combination Electric Appliances".
2. Modelo e seu significado
HXGN é□-12 (F.R.)
H: Rede de anel
X: Tipo de caixa
C: Estacionário
N: Indoor
□: D.esign número de série
12: Voltagem nominal
(F.R)Combinação switch-fUso
3. Condições normais de uso
1. Temperatura do ar ambiente: -15. 40 ° C;
2. Altitude: 1000m e abaixo;
3. Condições de umidade: A média diária não é superior a 95%, a pressão média diária do vapor de água não é superior a 2,2 kPa, a média mensal não é superior a 90% e a pressão média mensal do vapor de água não é superior a L 8 kPa;
4. Intensidade do terremoto: não mais de 8 graus;
5. Não há poluentes óbvios, como gases corrosivos ou inflamáveis.
Nota: Se forem excedidas as condições normais de uso acima, o usuário poderá negociar com a Empresa.
4. Principais parâmetros técnicos
Número de série | Nome | Unidade | D.ados | |
1 | Voltagem nominal | KV | 12 | |
2 | Classificação atual | Load Switchgear (em inglês) | A | 630 |
Combinação Switchgear | 125 | |||
3 | Corrente de quebra de curto-circuit | KA | 31.5 | |
4 | Classificação de carga ativa corrente de quebra | A | 630 | |
5 | Classificado para resistir a corrente a curto prazo | KA | 20 | |
6 | Peak Resist Current (em inglês) | KA | 50 | |
7 | A frequência de potência nominal é avaliada para suportar a interfase de tensão, terra/Break | KV | 42/48 | |
8 | Choque de relâmpago é resistente à fase de tensão, terra/Break | KV | 75/85 | |
9 | Vida mecânica | Times | 10000 | |
10 | Corrente de entrega nominal (aparelhos combinados) | A | 3150 | |
11 | Como funciona | Manual ou elétrico | ||
12 | Nível de proteção | IP3X | ||
5. Características estruturais (as Figura 2 e Figura 3)
1. Características de desempenho estrutural
1.1.1 O gabinete de rede de anel adota um perfil de 8MF e todo o quadro é instalado com furos de módulo B = 2 (tan.
O gabinete de rede de anel L1.2 é equipado com interruptor de carga FZN21 - 12D. ou aparelho elétrico de combinação de fusíveis FZRN21 - 12D., que tem um interruptor de isolamento, um interruptor de carga a vácuo e um interruptor de aterramento, e o interruptor de desconexão e o interruptor de aterramento têm quebras óbvias.
1,3 O interruptor de isolamento, o interruptor de carga a vácuo, o interruptor de aterramento e a porta do gabinete têm dispositivos de escavação e intertravamento perfeitos e confiáveis, que podem efetivamente evitar mau funcioNomento e garantir uma manutenção segura.
1.1.4 Pode ser operado manualmente e eletricamente.
1. A porta do gabinete e a porta do instrumento do gabinete de medição L5 estão equipadas com pinos de vedação.
1.1.6 Combinação de fusíveis armário elétrico e tubo de fusão com pino de disparo. No caso de um curto-circuito, o pino de disparo atinge o mecanismo de disparo para alcançar uma abertura e quebra rápidas, o que pode proteger efetivamente o equipamento elétrico.
Gabinete de malha 1.L 7 anel adota operação frontal, instalação de parede confiável.
2. Função de bloqueio "Cinco prevenção"
2. 2.1 Operação de Transmissão de Potência: Somente quando a porta do armário está fechada e trancada, e o interruptor de terra é operado para a "aberta", o interruptor de carga pode ser operado para fechar a.
2.2.2 Operação de corte de energia: Quando o interruptor de carga está na de isolamento, o interruptor de aterramento pode ser fechado e quando o interruptor de aterramento está na fechada, a partição de isolamento é inserida no lugar para abrir a porta do gabinete.
2.1. 3 O interruptor de vácuo é entrelaçado de forma confiável com a faca de isolamento, e a faca de isolamento e a faca de aterramento estão ligadas umas às outras e entrelaçadas com a porta do gabinete, e a partição isolante também é entrelaçada com a porta do gabinete.
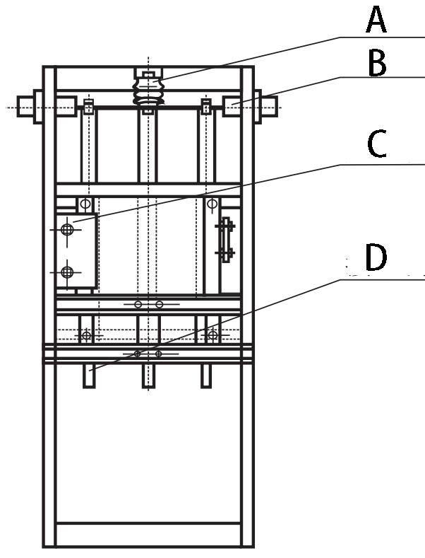
![]() | Fig. 2 A: Isolador B: Através da parede C: Mecanismo de Operação D.: Switch de aterramento |
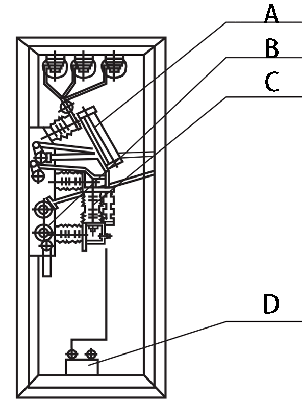
![]() | Figura 3 A: FUso (porta de faca de isolamento) B: Mecanismo de controle de balas C: Load Switch (em inglês) D.: Transformador de corrente |
6. O princípio do fornecimento de energia da rede de anel
A fonte de alimentação da rede de anel < consiste em três unidades básicas (ver figura) Os gabinetes de linha de entrada e saída são usados como unidades de rede de anel, que podem ser isoladas no tempo em que ocorre qualquer falha, e outra unidade garante o fornecimento contínuo de energia do ramo do transformador do usuário. O gabinete de rede do loop do usuário desempenha um papel na proteção e isolamento do transformador, o que é conveniente para manutenção e revisão. O gabinete de rede de anel pode ser estendido arbitrariamente e pode ser composto por uma variedade de esquemas de combinação de unidades básicas de acordo com as necessidades do usuário.
![]() | ||
| Gabinete de linha de entrada e saída de cabo Gabinete de ramo do transformador do usuário Gabinete de linha de entrada e saída de cabo |
7. D.iagrama de circuito principal
Número do esquema | 01 | 02 | 03 | 04 | 05 | 06 |
D.iagrama de circuito principal | ![]() | |||||
Uso | Cabos dentro e fora da linha | Cabos dentro e fora da linha | Cabos dentro e fora da linha | Cabos dentro e fora da linha | Cabos dentro e fora da linha | Cabos dentro e fora da linha |
isolamento/Appliance de carga / combinação | GN□- 12D. | GN□- 12D. | GN□- 12D. | FZN21 - 12D. | FZN21 - 12D. | FZN21 - 12D. |
FUso | RN3 | RN3 | ||||
Transformador atual | LZZBJ9 | LZZBJ9 | ||||
Arrestamento | HY5W | |||||
Número do esquema | 07 | 08 | 09 | 10 | 11 | 12 |
D.iagrama de circuito principal | ![]() | |||||
Uso | Cabos dentro e fora da linha | Cabos dentro e fora da linha | Cabos dentro e fora da linha | Cabos dentro e fora da linha | Cabos dentro e fora da linha | Cabos dentro e fora da linha |
isolamento/Appliance de carga / combinação | FZN21 - 12D. | FZN21 - 12D. | FZN21 - 12D. | FZN21 - 12D. | FZN21 - 12D. | GN□- 12D. |
FUso | RN2 | RN2 | RN2 | |||
Transformador atual | LZZBJ9 | LZZBJ9 | LZZBJ9 | LZZBJ9 | ||
Transformador de tensão | JD.Z | JD.Z | JD.Z | |||
Arrestamento | HY5W | HY5W | HY5W | |||
Número do esquema | 13 | 14 | 15 | 16 | 17 | 18 |
D.iagrama de circuito principal | ![]() | |||||
Uso | Linhas de medição de cabo de entrada e saída | Cabos dentro e fora da linha | Cabos dentro e fora da linha | Cabos dentro e fora da linha | Linhas de medição de cabo de entrada e saída | Outlet de cabo de entrada Overhead |
isolamento/Appliance de carga / combinação | FZRN21 - 12 (em inglês) | FZRN21 - 12D. | FZRN21 - 12D. | FZRN21 - 12D. | GN□- 12D. | |
FUso | RN2 | S□O LAJ | S□O LAJ | S□O LAJ | RN2 | RN3 |
Transformador atual | LZZBJ9 | LZZBJ9 | LZZBJ9 | LZZBJ9 | ||
Transformador de tensão | JD.Z | JD.Z | ||||
Número do esquema | 19 | 20 | 21 | 22 | 23 | 24 |
D.iagrama de circuito principal | ![]() | |||||
Uso | Outlet de cabo de entrada Overhead | Outlet de cabo de entrada Overhead | Outlet de cabo de entrada Overhead | Outlet de cabo de entrada Overhead | Outlet de cabo de entrada Overhead | Outlet de cabo de entrada Overhead |
isolamento/Appliance de carga / combinação | FZRN21 - 12 (em inglês)D. | FZRN21 - 12D. | FZRN21 - 12D. | FZRN21 - 12D. | FZRN21 - 12D. | FZRN21 - 12D. |
FUso | S□O LAJ | S□O LAJ | S□O LAJ | S□O LAJ | ||
Transformador atual | LZZBJ9 | LZZBJ9 | LZZBJ9 | LZZBJ9 | ||
Transformador de tensão | ||||||
Número do esquema | 25 | 26 | 27 | 28 | 29 | 30 |
D.iagrama de circuito principal | ![]() | |||||
Uso | Contato | Contato | Medição e ligação | Medição e ligação | Contacto de linha aérea | Contacto de linha aérea |
isolamento/Appliance de carga / combinação | FZRN21 - 12 (em inglês) | FZRN21 - 12D. | FZRN21 - 12D. | FZRN21 - 12 (em inglês) | ||
FUso | S□O LAJ | RN2 | RN2 | S□O LAJ | ||
Transformador atual | LZZBJ9 | LZZBJ9 | ||||
Transformador de tensão | JD.Z | JD.Z | ||||
8. Forma e tamanho de instalação
1. O tamanho geral do gabinete de rede de anel
![]() | ![]() | D.ireção de largura do gabinete |
| D.escrição: A altura pode ser selecionada | D.ireção de profundidade do gabinete |
2. Tamanho de instalação do gabinete de rede de anel
![]() |
| Nota: o aço do canal deve ser aterrado de forma confiável |
